Commission: Alloy Wheel Dip Tank

I was commissioned to design a dip tank for stripping alloy wheels of their powdercoat, using an existing tank as a reference point. This tank was to be made using 2mm stainless steel – laser cut and folded on a press brake – then TIG welded all round, double seamed. Not one to get wrong!

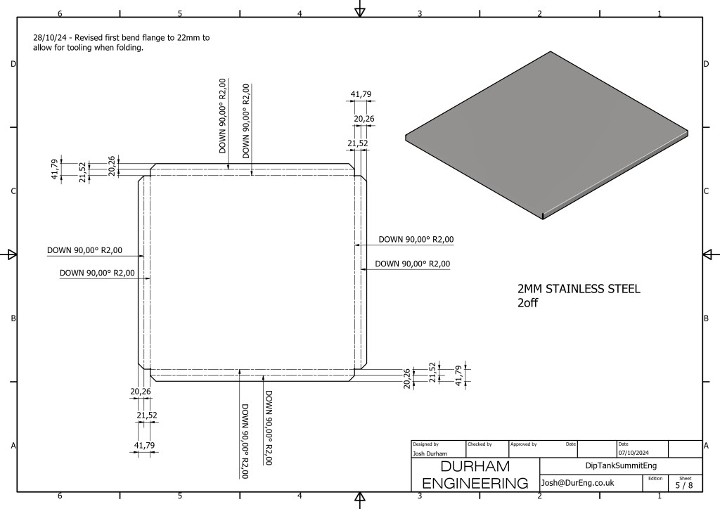
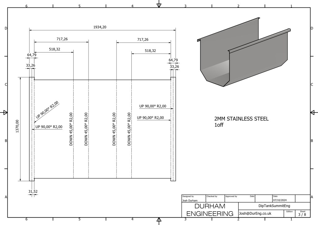
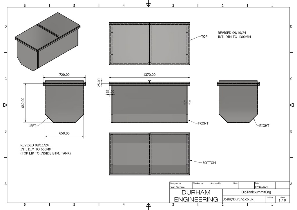
Below are the drawings I supplied to the client, with fold instructions and separate DXFs for ease of programming on the laser. The fold drawings are designed with available tooling in mind.

The first two pictures below are of the tank that was provided as a reference by the client, the remaining pictures are the cut and folded parts done to my designs and drawings. The final picture is the welded assembly, sitting on a stainless SHS frame.

This was quite a challenge, working with pretty expensive material and tight tolerances to match existing parts. The client was happy with the end result and I think a run of 5 were made initially. I enjoy working with sheet metal, if you have any sheet metal work that needs completing please send me an email at josh@dureng.co.uk.

The Rack (Clothes Airer)

Not the most glamorous project – but worthwhile work nonetheless. I think it’s because I remember having one of these in the kitchen of the house I grew up in, but I do like these things.

The final item.

I wanted to buy a pulley maid to fit under the carport and dry clothes in a slightly more efficient arrangement than just using the washing lines (density is everything – clothes drying real estate is a hot commodity round these parts).

However – the offerings available are; expensive, foreign made, and almost exclusively – tacky.

I can’t guarantee that I can make something ‘prettier’ but I can certainly improve on the other two.

I set myself a limited brief for this little project, as below.

  1. Simple design.
  2. Made locally, wherever possible.
    • Can’t be too restrictive on this front and hope to keep the product at a reasonable price point – the road to hell is paved with good intentions…
  3. Off the shelf parts are almost always preferable to a custom part.
    • ALMOST always.
    • Engineering rule number one should be never make anything you can buy, it’ll take twice as long to make and be half as good.
    • Where an off the shelf part is of a good enough quality, origin and price point – I’ll always choose to use that rather than design in a custom part. Put the resources where they are most useful, no need to reinvent the wheel.

Design

The design of this wasn’t onerous by any stretch – a couple of hours maximum. Mostly just me trying to reign myself in with the over engineering. Initially an 8 lath design, with an arc span of about 1000mm – however the second revision was brought down to 6 laths and 750mm. Reducing from 8 laths to 6 keeps the cost down, and makes the product more suitable for different spaces. The beauty of these is that the length is (almost) infinitely adjustable – the laths are commonly available in 2400mm lengths.

Manufacture

I’ve chosen to manufacture this from 3mm mild steel – a large part of me wanted to make this from stainless steel – but the costs are just so much higher – owing to material costs and the need to use nitrogen etc. when cutting stainless using a laser. Manufacturing from mild steel necessitates painting the parts due to application – but that’s no problem.

Metal

I’ve been fortunate to find a firm local to me – really local to me – within 2 miles – that can laser cut the profiles from my designs on the steel. Sincerely hoping to do more work with them in the future, their capacity is quite impressive for a small firm.

Wood

The laths are being supplied by Cheshire Mouldings, 12mm x 30mm – rounded edges – hardwood – European timber. These are really quite nice – far nicer than they need to be for the application. A light coat of Danish oil and they’re ready to be fitted. I’ve designed this to use 12×30 laths as to keep the end unit cost as low as possible – these aren’t typically marketed as airer laths – and as such don’t attract the 150%~ premium (look up replacement airer laths on eBay – and see what I mean).

Rope

I never really considered the provision of UK manufactured rope till I started working on this – but I was pleasantly surprised to find a local manufacturer of seriously high quality pulley rope. James Lever of Bolton have been producing high quality rope and twine in Lancashire since 1856. I’ve chosen the ‘Everlasto’ pulley rope – this is competitively priced and of a very good quality. I found it very reassuring to find that not every last strand of our cotton industry has been confined to the history books.

Pulleys

The bad news, short of contracting a blacksmith to forge these for me as a custom job (note design condition 3) – I was going to have to purchase an overseas made part. A concession that had to be made to stick to my self imposed brief. The pulleys are made in India for ‘Merriweather’. That’s about all I care to know for the product. The quality is more than adequate, anyway.

Conclusion

A nice little project – met the brief – made the product.

One more product being produced in the UK.

Hurdy Gurdy Tangents

If you don’t know what I’m talking about – you probably don’t need them. This is a pretty niche project – even for me.

Image credit: https://gurdyworld.com/

I was introduced to renowned Hurdy Gurdy maker, Neil Brook – as I needed a skilled (and patient) luthier to do some light restorative works to a battered 1970’s Yamaha acoustic guitar I inherited from a sadly deceased friend.

In conversation, we arrived at the subject of digital design and 3D printing – an area he had explored before in regards to the manufacture of highly accurate and repeatable tangents – however it hadn’t been possible at the time.

Skipping to the point…

I modelled a protoype in Autodesk Fusion, to Neil’s wooden pattern – and 3D printed it as a test – to see if I could meet the tolerances required (pretty bloody tight – couple of thou out and we’re filling the scrap bin).

Prototype approved in principle, meeting the demanding tolerances – we moved on to material selection. Common plastics suitable for 3D printing are PLA, PETG and ABS – all have their own respective advantages and disadvantages. After some trial and error – and a few more prototypes – we settled on PETG (Polyethylene Terephthalate with Glycol) but with strands of carbon fiber laced into the filament – this adds a level of stiffness and abrasion resistance that is quite suited to the application.

I have now found someone to produce these for me – and I hold a limited stock. They are available on order from me at josh@dureng.co.uk for £25 for a full set (30 long, 30 short – 18mm, 10mm) – worldwide postage is available.

Now this little side project is ‘finished’ – I can start working on something else from the pile of future projects. It was an interesting challenge to take a product from design, to prototype, to manufacture, and then to outsource the ‘production’ runs out to a third party – there are options available in the future for injection moulding but the costs to have the moulds milled from aluminium are fairly high for an entry point.

I do still have some limited capacity for general design and engineering projects, so please do get in touch if you have a problem that needs solving.

Please find a link to Neil’s write up here.